Bebauungspläne
Hier finden Sie Satzungen und den zeichnerischen Teil der Pläne.
Bebauungsplan "Mittelösch II" (Dürmentingen)
Der Bebauungsplan ist rechtskräftig seit dem 11.11.1999.
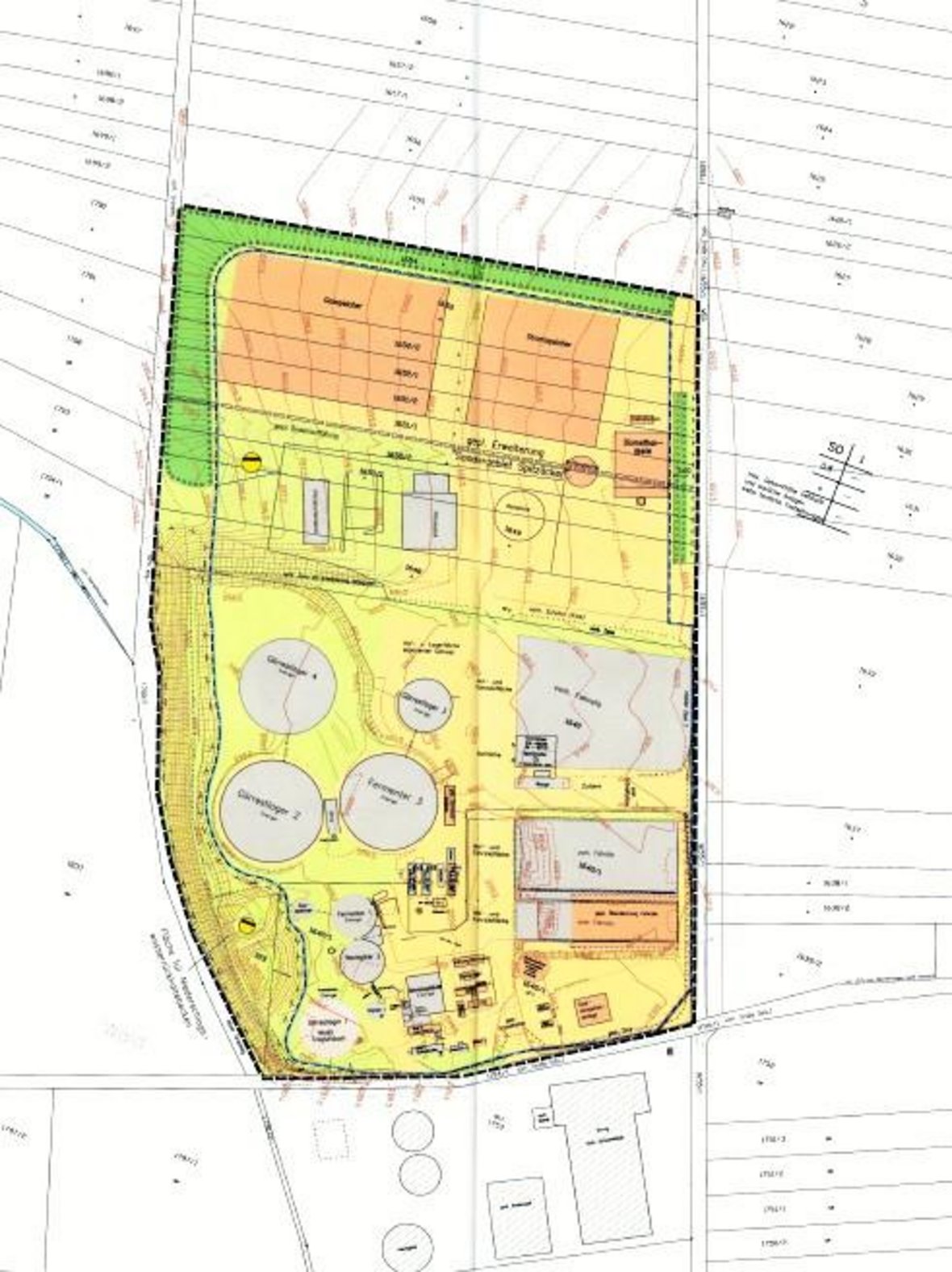
Bebauungsplan "Mittelösch II" - 1. Änderung (Dürmentingen)

Der Bebauungsplan ist rechtskräftig seit dem 01.06.2018.
Bebauungsplan "Mühlhalde V" (Hailtingen)
Der Bebauungsplan ist rechtskräftig seit dem 29.11.2024
Satzung mit Satzung über die örtlichen Bauvorschriften
Zeichnerische Teil des Bebauungsplans
Bebauungsplan "Mühlhalde IV" (Hailtingen)

Der Bebauungsplan ist rechtskräftig seit dem 12.03.1998.
Bebauungsplan "Breite IV" (Heudorf)

Der Bebauungsplan ist rechtskräftig seit dem 02.07.2009.
Satzung mit Satzung über die örtlichen Bauvorschriften